08.07.2019

ingenio-web.it

Il complesso progetto di ristrutturazione di una piscina di un hotel incastrato tra terra e mare

La ristrutturazione della piscina dell’Hotel Excelsior Palace di Rapallo con realizzazione di solai in lamiera grecata e telaio in acciaio. La descrizione dell'intervento e della modelalzione

La ristrutturazione della piscina dell’Hotel Excelsior Palace di Rapallo con realizzazione di solai in lamiera grecata e telaio in acciaio

Di seguito si descrivono gli interventi strutturali adottati dallo Studio O&M Ingegneria per la ristrutturazione di diverse parti dell’Hotel Excelsior Palace di Rapallo, struttura alberghiera a 5 stelle affacciata sul Golfo del Tigullio, che gode di un suggestivo panorama della Baia e del Monte di Portofino. L’importante volume edilizio vanta una posizione strategica sulla strada che conduce a Santa Margherita Ligure ed a Portofino, collocazione che lo pone al centro di una zona con forte vocazione turistica.

Lo Studio O&M Ingegneria è stato chiamato ad intervenire per la ristrutturazione di diverse parti strutturali del centro benessere dell’albergo; a fronte dell’esperienza maturata operando spesso in lavori speciali in ambienti industriali e anche in ambienti naturali difficili, ha affrontato l’incarico con un’attenta programmazione e con l’impiego di tecnologie innovative. Le principali criticità riscontrate hanno riguardato la stretta interconnessione tra le strutture su cui intervenire e quelle limitrofe, appartenenti anche ad altri proprietari per i quali risulta necessario impedire ogni variazione di regime statico e tensionale, l’ubicazione della struttura che rende molto difficile la gestione nonché la logistica di uomini e attrezzature, e ancora le complessità derivanti dalla geologia della zona d’intervento e dalla sismicità dell’area.

La descrizione dell’intervento di ristrutturazione delle strutture dell'hotel

Di seguito vengono descritti gli interventi che hanno riguardato le opere strutturali in acciaio e cemento armato della zona denominata “emiciclo” e che, in particolare, hanno interessato la ristrutturazione della piscina esterna esistente, situata all’ultimo piano dell’Hotel, e la realizzazione di solai e di telai metallici nella zona sottostante l’emiciclo a supporto della piscina stessa.

La scelta di voler descrivere dettagliatamente le tipologie di interventi strutturali che hanno riguardato esclusivamente questa zona del complesso è da riferirsi alle enormi difficoltà riscontrate durante l’esecuzione, dato che il cantiere si estendeva in una zona difficile da rifornire in quanto si tratta di una scogliera interclusa tra il mare e la strada provinciale.

Merita, inoltre, di essere annoverato il metodo di calcolo e la modellazione strutturale che si è scelta di effettuare con l’ausilio di DOLMEN, software di calcolo di comprovata affidabilità che permette di eseguire un'analisi dettagliata del comportamento dell'intera struttura, tenendo conto del comportamento irrigidente di setti anche complessi e di solai, considerati con la loro effettiva rigidezza.

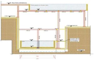
Il centro benessere è stato interessato dalla demolizione del parcheggio automatizzato, dalla realizzazione di due solai interpiano in lamiera grecata e di telaio metallico e dalla ristrutturazione della piscina esterna.

Al di sotto della piscina esterna, all’ultimo piano della porzione di Hotel con affaccio sul mare, vi era un’autorimessa meccanizzata che si estendeva in parte anche al di sotto dell’edificio adiacente, denominato Kursaal. L’autorimessa era stata destinata ad ospitare nuovi servizi per gli ospiti dell’Hotel, di conseguenza possedendo essa altezze di interpiano ridotte necessitava di essere svuotata delle strutture portanti e sostituita da nuove membrature adatte alla nuova distribuzione interna e, quindi, alla nuova destinazione d’uso. Il primo e il secondo piano sono, quindi, stati interessati dalla realizzazione di nuovi solai in lamiera grecata, in particolare si è scelto di adottare la lamiera EGB/210 D avente un’altezza pari a 55 mm, uno spessore di 1,2 mm e un interasse medio fra le gole pari a 150 mm; lo spessore complessivo della soletta (calcestruzzo e lamiera grecata) è di 125 mm.

Al sostegno dei solai interpiano e della piscina esterna con fondo misto acciaio-calcestruzzo, è stato realizzato un nuovo telaio in acciaio, formato da una maglia di travi principali travi HEB 240 per i solai intermedi e travi principali HEB 220. Le travi secondarie per i solai intermedi sono delle IPE 160 o IPE 200, le travi principali sono sostenute da delle colonne in acciaio (HEB 240 o HEB 280) che sono state ancorate al fondo roccioso della costruzione.

La ristrutturazione della piscina esterna esistente posta all'ultimo piano

L'ultimo piano ha subito la ristrutturazione della piscina esistente, l'intervento prevedeva infatti la demolizione e successiva sostituzione del fondo della piscina scoperta esistente mediante struttura mista acciaio-calcestruzzo costituita da una lamiera grecata su cui è stato eseguito un getto di calcestruzzo.

La lamiera ha la funzione di cassero durante la costruzione e costituisce l’armatura longitudinale dopo l’indurimento del calcestruzzo. Le lamiere grecate sono state sostenute da un graticcio di travi in acciaio ancorate alle pareti in cemento armato, sono stati utilizzati profilati HEB 260 per le travi principali e profilati IPE 200 per le travi secondarie; complessivamente il getto del calcestruzzo ha uno spessore pari a 30 cm.

Per rendere solidale la soletta di cemento armato con le travi principali in acciaio sono stati installati dei connettori di taglio aventi diametro pari a 20 mm e altezza di 20 cm, con passo di 50 cm. La soletta in c.a. è stata armata superiormente ed inferiormente mediante barre di diametro 14 mm e passo di 20 cm, in direzione longitudinale e trasversale; in corrispondenza dei nodi trave colonna è stata infittita l’armatura inserendo delle barre di diametro 16 mm e passo di 20 cm.

La modellazione delle strutture

Le opere strutturali sono state modellate con il metodo degli elementi finiti, applicato a sistemi tridimensionali; gli elementi utilizzati sono sia monodimensionali (pilastro), che bidimensionali (piastre).

La struttura è stata schematizzata escludendo il contributo degli elementi aventi rigidezza e resistenza trascurabili a fronte dei principali. La soluzione del problema iperstatico ha comportato come risultati le reazioni vincolari ai vincoli esterni, le sollecitazioni Mx, My, Mxy, Sx, Sy, Sxy di tutti i gusci componenti il sistema e le sollecitazioni N, Tz, Ty, Mx, My, Mz di tutti gli elementi asta.

Le membrature in acciaio S355 sono state tutte modellate come aste, mentre la resistenza della lamiera grecata e del sistema costruttivo misto acciaio-calcestruzzo è stato considerato nullo. La lamiera è stata, di conseguenza, considerata nel calcolo come un cassero per il sostegno della soletta in c.a; questa scelta è stata effettuata a favore di sicurezza.

Lo studio del comportamento dell'edificio e della piscina è stato sviluppato analizzando la struttura e la piscina sotto l'effetto dei carichi gravitazionali e sismici, considerando le condizioni di carico più sfavorevoli. È stato possibile, in tal modo, calcolare gli spostamenti massimi verticali e sismici nelle due direzioni principali; i risultati ottenuti osservando gli spostamenti orizzontali nelle due direzioni, sono del tutto compatibili con la struttura analizzata.

Sono state, inoltre, svolte le verifiche di instabilità su tutti i profili in acciaio ed esse sono risultate soddisfatte.

Per quanto riguarda il solaio è costituito da una lamiera grecata di spessore 1.2 mm e altezza 55.0 mm sulla quale viene eseguito un getto in calcestruzzo armato di 45.0 mm di spessore, fino al raggiungimento di uno spessore complessivo della soletta pari a 70 mm, che poggerà sulle travi principali sottostanti.

La lamiera è resa collaborante con il calcestruzzo mediante impronte capaci di ancorare il getto impedendo sia lo scorrimento orizzontale che il distacco verticale. In fase di getto fino a quando il calcestruzzo non avrà raggiunto un adeguato livello di maturazione (1° fase), il peso proprio del calcestruzzo, del personale e dei mezzi utilizzati viene sostenuto dalla sola lamiera. Una volta avvenuta la maturazione del calcestruzzo (2° fase), la lamiera ed il calcestruzzo formeranno una sezione omogeneizzata con tutte le caratteristiche dei solai in cemento armato tradizionali, dove la lamiera, dopo aver assolto la funzione di cassaforma, assumerà per i momenti positivi, quella di armatura metallica. Al fine di incrementare la resistenza dell’intera soletta è stato aggiunto in zona tesa un ferro di diametro 12 mm in ogni canaletta per l’intero solaio, mentre in zona compressa è stata posizionata una rete elettrosaldata di diametro 10 mm con maglia quadrata 20x20 cm.

I sistemi di collegamento strutturale tra le membrature in acciaio che sono stati utilizzati sono piastre, bulloni e saldature; le verifiche effettuate sono di resistenza delle saldature, delle unioni bullonate e di compressione e di tensione delle piastre.

Via G. Garibaldi, 46
15011 Acqui Terme (AL)
segreteria@muschiato.com
(+39) 0144 323277
Copyright 2025 Muschiato Ingegneria · Sede Legale: Via G. Grasso, 19 · 14058 Monastero Bormida (AT) · P.IVA 00920970050