progetto

AREE OFFICINE SAVIGLIANO, SNOS GALLERY

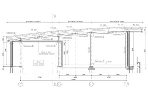
Progettazione e Realizzazione strutture in acciaio
Torino, 2009.
O&M Ingegneria

Nel cuore di Torino, all’interno dell’ex area industriale delle Officine Savigliano, sorge lo SNOS Gallery Centre, inaugurato il 24 giugno 2009. Il progetto ha riguardato il recupero volumetrico delle aree dismesse, avviato nel 2004, e ha incluso la progettazione costruttiva delle parti metalliche e in vetro degli edifici, con destinazione d’uso prevalente a uffici, business center e spazi commerciali.

Il complesso rappresenta un esempio di eccellenza nel recupero dell’architettura industriale, unendo elementi storici del primo Novecento a soluzioni strutturali e architettoniche contemporanee. La semplicità formale, la valorizzazione dei materiali tradizionali e la qualità ingegneristica degli elementi in acciaio e vetro caratterizzano l’intervento.

Il risultato è un centro urbano moderno e funzionale, perfettamente integrato nel tessuto cittadino e facilmente accessibile, che conserva la memoria industriale torinese e la reinterpreta in chiave postindustriale, tra lavoro, shopping e intrattenimento.

Via G. Garibaldi, 46
15011 Acqui Terme (AL)
segreteria@muschiato.com
(+39) 0144 323277
Copyright 2025 Muschiato Ingegneria · Sede Legale: Via G. Grasso, 19 · 14058 Monastero Bormida (AT) · P.IVA 00920970050